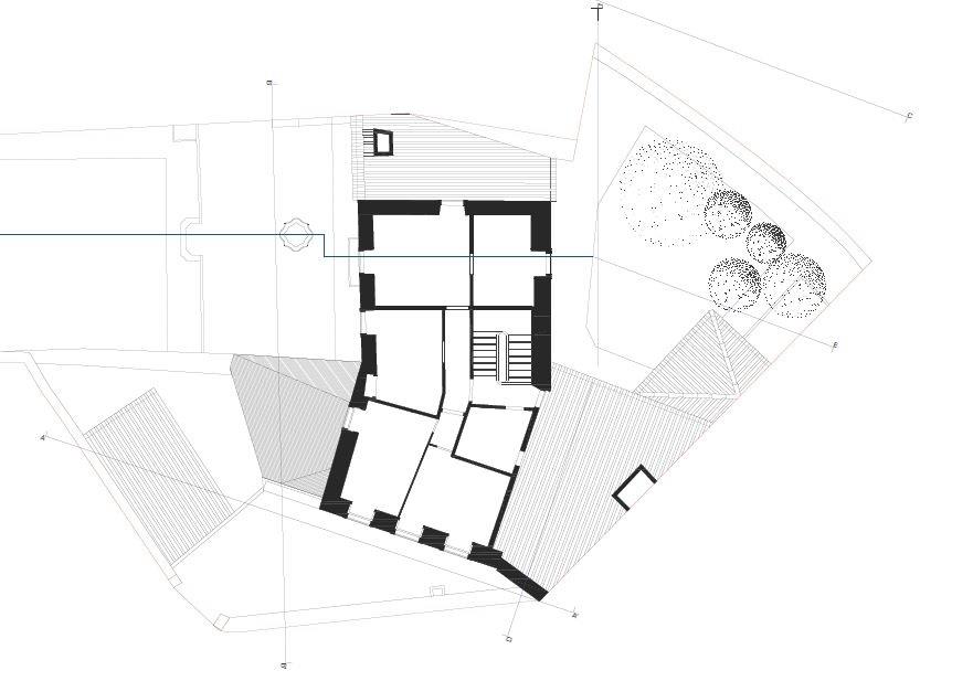
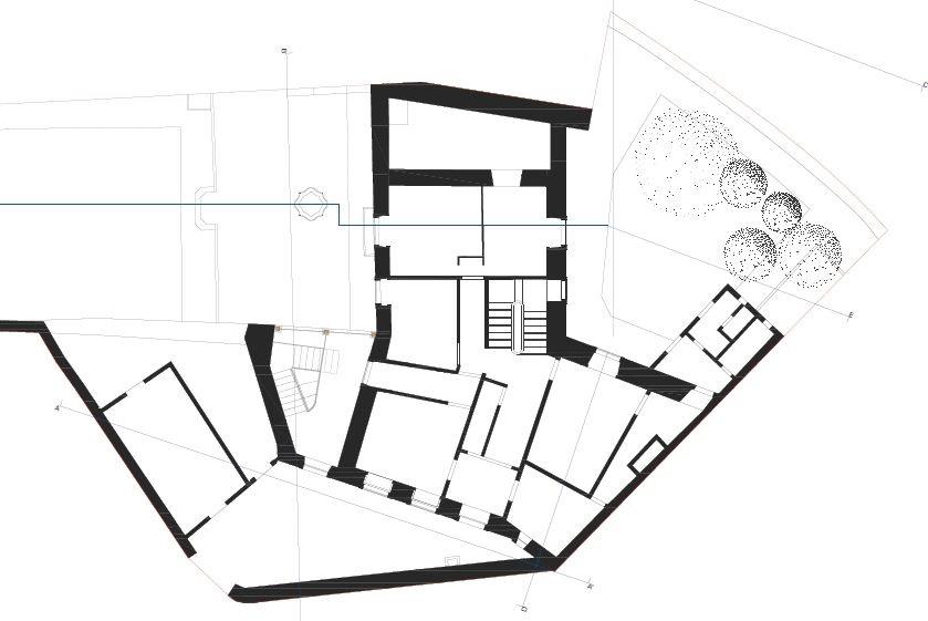
Prédio na Zona histórica da Cidade de Coimbra.
Descrição: Prédio para remodelar na zona histórica da Cidade de Coimbra.
Compare anúncios
Por favor, digite seu nome de usuário ou endereço de e-mail. Você receberá um link para criar uma nova senha por email.